2026-Jan-25 | 14:00 - 16:00
Bungalow | MLS: 22673860
Well-maintained 3+1 bedroom, 2-bath bungalow located on a quiet crescent in a mature, family-friendly neighborhood. Large eat-in kitchen. French doors open to nicely landscaped backyard with two-tier deck. Bright, spacious basement features a good-sized bedroom along with additional room ideal for a home office or computer room. The double garage has been partially converted, offering parking for one car and a separate workshop area. Easy access to Highway 40, REM, and close to public transit and amenities. Great home with functional layout offering excellent potential to update, personalize and add value. Come visit!
Welcome to 15450 Rue d'Esterel!
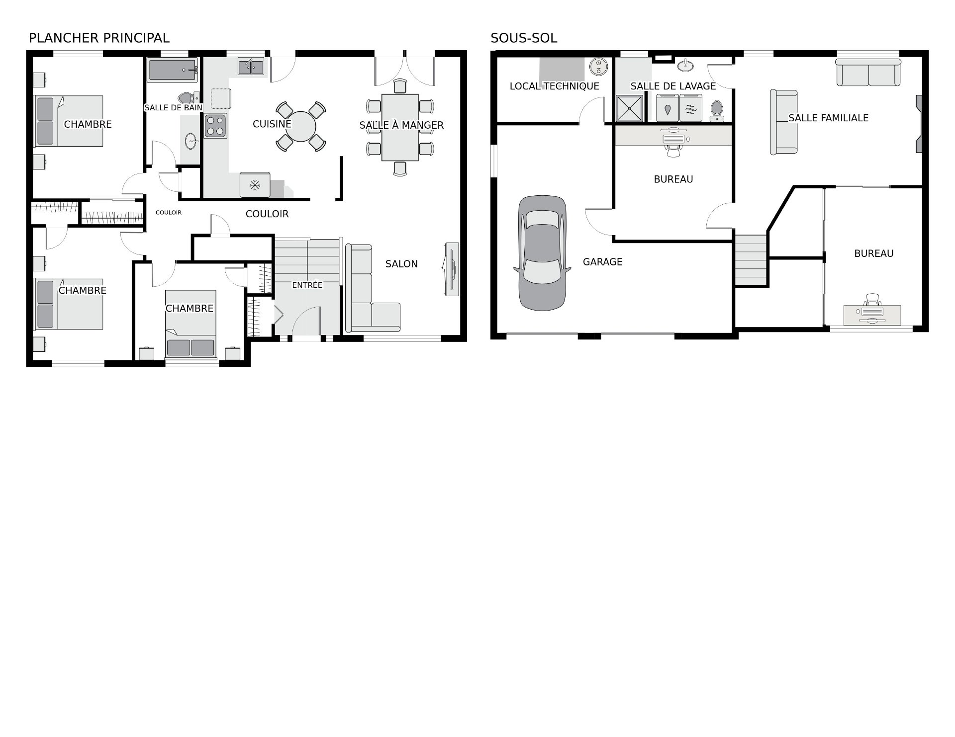
Step inside and you're greeted by a bright entryway with
convenient coat closet. A few steps lead up to the main
level, where the living and dining rooms flow together,
creating an open and airy feel thanks to the wall being
opened up between the kitchen and dining area.
The large kitchen offers plenty of room for an eat-in area
or the addition of an island.
French doors from the dining room lead to a beautifully
landscaped, fully fenced backyard with two-tier deck
creating a peaceful outdoor space perfect for relaxing or
entertaining. A shed and sprinkler system offer ease of
maintenance and ample outdoor storage.
The main floor also features three comfortable bedrooms and
a generously sized main bathroom.
Downstairs, a spacious layout with cozy family room,
propane gas fireplace and a bedroom with pocket French
doors allowing natural light to filter through. You will
find an additional full bathroom with shower and laundry
area.
There is also a versatile room leading to the garage, ideal
for a home office, computer/gaming space or home
gym/workout room. This room was created by converting part
of the double garage, leaving the remaining area as a
single-car garage with a workshop.
Outside, the sprinkler system also connects to the flower
boxes at the front of the home, and new sod was installed
in the front yard in 2025, adding to the curb appeal and
overall care of the property.
A solid home waiting for a new family to make it their own.
Come visit!
Inclusions : Light fixtures, blinds, curtains (kitchen blind and dining room blind are not working properly), central vacuum cleaner and its accessories, shed, gazebo (curtains and mosquito nets are damaged), garden furniture, furnace filters, wooden storage cabinet in the garage
Exclusions : 2 refrigerators, freezer, dishwasher, stove, washer, dryer, office shelves in the basement, office closet shelves in the basement, generator
| Room | Dimensions | Level | Flooring |
|---|---|---|---|
| Hallway | 6.2 x 4.5 P | Ground Floor | Ceramic tiles |
| Living room | 13.4 x 11 P | Ground Floor | Wood |
| Kitchen | 13.4 x 12.9 P | Ground Floor | Ceramic tiles |
| Dining room | 13.4 x 11 P | Ground Floor | Wood |
| Primary bedroom | 13.7 x 10.5 P | Ground Floor | Wood |
| Bedroom | 12.7 x 9.3 P | Ground Floor | Wood |
| Bedroom | 10.5 x 9.1 P | Ground Floor | Wood |
| Bathroom | 10.3 x 4.11 P | Ground Floor | Ceramic tiles |
| Hallway | 15.1 x 3.3 P | Ground Floor | Wood |
| Family room | 17.1 x 11.9 P | Basement | Wood |
| Bedroom | 12.7 x 9.0 P | Basement | Wood |
| Home office | 10.10 x 10.6 P | Basement | Linoleum |
| Washroom | 10.10 x 6.0 P | Basement | Ceramic tiles |
| Basement | 6 feet and over, Finished basement |
|---|---|
| Heating system | Air circulation |
| Siding | Aluminum, Brick |
| Driveway | Asphalt |
| Roofing | Asphalt shingles |
| Proximity | Bicycle path, Daycare centre, Elementary school, High school, Highway, Park - green area, Public transport, Réseau Express Métropolitain (REM) |
| Equipment available | Central air conditioning, Central vacuum cleaner system installation |
| Garage | Double width or more, Fitted, Heated |
| Heating energy | Electricity |
| Landscaping | Fenced |
| Parking | Garage, Outdoor |
| Hearth stove | Gaz fireplace |
| Sewage system | Municipal sewer |
| Water supply | Municipality |
| Foundation | Poured concrete |
| Zoning | Residential |
| Rental appliances | Water heater |
This property is presented in collaboration with EXP AGENCE IMMOBILIÈRE