Kirkland H9J2W5
Two or more storey | MLS: 12201551
Spacious 4+2 bedroom, 3+1 bath home in the heart of Kirkland, steps from the future REM and top schools, including Émile-Nelligan Elementary (public) and Maternelle Marie-Claire (private). Features a 4-season heated solarium (2020), Pave-Uni patio, spa, and private backyard with gazebo -- perfect for relaxing or entertaining. Heated floors in the kitchen and ensuite, newer windows (2015), cozy family room with fireplace, finished basement, and central heat pump for year-round comfort.
Renovations:
2013 - Stairs redone with birch
2015 - All windows (except the front bay window) replaced
2020 - Solarium added
2016 - Kitchen and dining rooms opened up and renovated
2022 - Pave-Uni installed in the backyard
2023 - Spa added
2025 - Roof covering replaced
Renovations over the years:
-Flooring switched from carpet
-Ceramic floors added in the entry
-Basement finished
-Garage door and motor replaced; touchpad entry added
Inclusions : Washing machine, dishwasher, fridge, stove, microwave, 5,000-watt generator, BBQ, spa, deep freezer in basement, solarium furniture, gazebo, picture on the wall in the basement, hideaway beds in the basement and family room, wall unit in basement, bedroom furniture, window coverings, exercise bike in basement, dehumidifier in basement, gazebo lights, outdoor solar lights, and fireplace accessories.
Exclusions : Lighting fixture in dining room, bar stools in kitchen, wine fridge in kitchen, lighting fixture in primary bedroom, wall unit in family room, and alarm system.
| Room | Dimensions | Level | Flooring |
|---|---|---|---|
| Other | 9.3 x 14.9 P | Ground Floor | |
| Living room | 18.6 x 12.4 P | Ground Floor | |
| Dining room | 10.8 x 13.11 P | Ground Floor | |
| Kitchen | 12.0 x 13.11 P | Ground Floor | |
| Family room | 20.6 x 15.3 P | Ground Floor | |
| Washroom | 5.3 x 10.3 P | Ground Floor | |
| Solarium | 11.6 x 13.1 P | Ground Floor | |
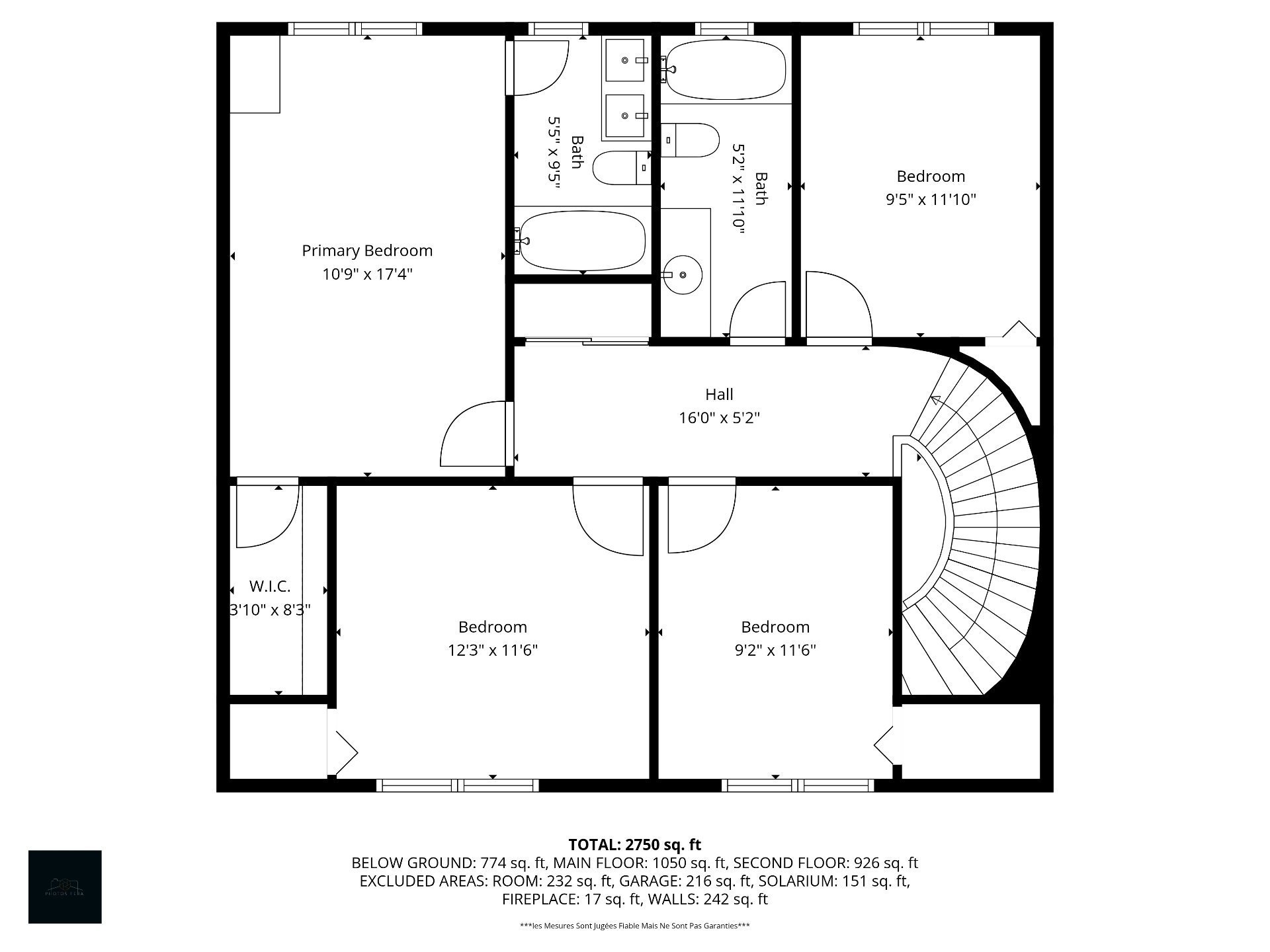
| Hallway | 16.0 x 5.2 P | 2nd Floor | |
| Primary bedroom | 10.9 x 17.4 P | 2nd Floor | |
| Bathroom | 5.5 x 9.5 P | 2nd Floor | |
| Bedroom | 9.5 x 11.10 P | 2nd Floor | |
| Bathroom | 5.2 x 11.10 P | 2nd Floor | |
| Bedroom | 12.3 x 11.6 P | 2nd Floor | |
| Walk-in closet | 3.10 x 8.3 P | 2nd Floor | |
| Bedroom | 9.2 x 11.6 P | 2nd Floor | |
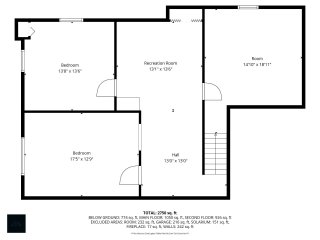
| Bedroom | 13.8 x 13.6 P | Basement | |
| Bedroom | 17.5 x 12.9 P | Basement | |
| Storage | 14.10 x 18.11 P | Basement | |
| Hallway | 13.0 x 13.0 P | Basement | |
| Playroom | 13.1 x 13.6 P | Basement |
| Basement | 6 feet and over, Finished basement |
|---|---|
| Bathroom / Washroom | Adjoining to primary bedroom |
| Roofing | Asphalt shingles |
| Garage | Attached, Heated, Single width |
| Equipment available | Central heat pump |
| Foundation | Concrete block |
| Proximity | Daycare centre, Elementary school, Highway, Park - green area, Réseau Express Métropolitain (REM) |
| Heating system | Electric baseboard units |
| Heating energy | Electricity |
| Landscaping | Fenced, Landscape |
| Topography | Flat |
| Parking | Garage, Outdoor |
| Sewage system | Municipal sewer |
| Water supply | Municipality |
| Driveway | Plain paving stone |
| Zoning | Residential |
This property is presented in collaboration with KELLER WILLIAMS PRESTIGE